Navigation überspringen Sitemap anzeigen

Aktuelle Projekte und verfügbare Grundstücke

Sie haben Interesse an einem der gezeigten Objekte? Gern beantworten wir Ihnen alle Fragen. 

Neben der dargestellten Projekte arbeiten wir stetig an Einfamilienhäusern, um unseren Kunden den Traum vom Eigenheim zu verwirklichen. Nach Absprache können wir auch Rohbaubesichtigungen für unsere Neukunden organisieren.

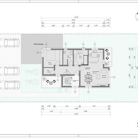
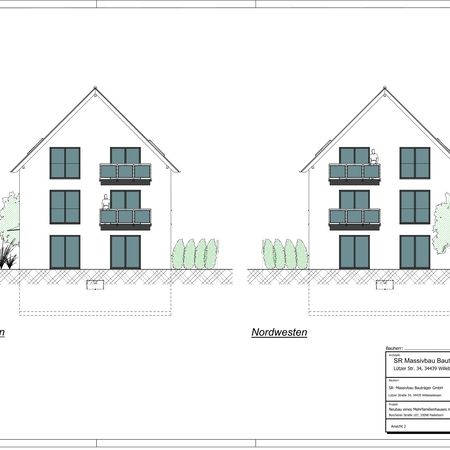
Neubau eines Mehrfamilienhauses in Paderborn, Wagnerweg

In zentraler Lage, Nähe der Detmolder Straße, entstehen 6 barrierefreie Eigentumswohnungen im KFW40-Standard mit einer Aufzugsanlage. Als Heizsystem wird eine energiesparende Luft-Wasser-Wärmepumpe eingebaut. Hochwertige Dämmmaßnahmen 22cm (Wärmedämm-Verbundsystem) sorgen für niedrige Energiekosten. Die Wärmeverteilung in den Wohnungen erfolgt über eine Fußbodenheizung, die in jedem Zimmer separat geregelt werden kann. Eine moderne Lüftungsanlage dient zur dauernden Be- u. Entlüftung der Wohnungen. Große Fenster zur Westseite sorgen für lichtdurchflutete, helle Räume. Die Fenster haben eine 3-fach-Wärmeschutzverglasung und werden mit elektrischen Rollläden ausgestattet. Jedes
Badezimmer hat ein Fenster und ist mit einer Dusche ausgestattet. Im Keller wird für jede Wohnung ein eigener Abstellraum errichtet. Für alle Bewohner steht ein Wasch- und Trockenkeller zur Verfügung. Sämtliche Badarmaturen sowie Türklinken werden in der Farbe schwarzmatt ausgeführt!

Bei Interesse stellen wir gern den Kontakt zu den Postbank Immobilien in Paderborn her.

Wir freuen uns auf Sie!

Nur noch 2! Wohnungen verfügbar!!

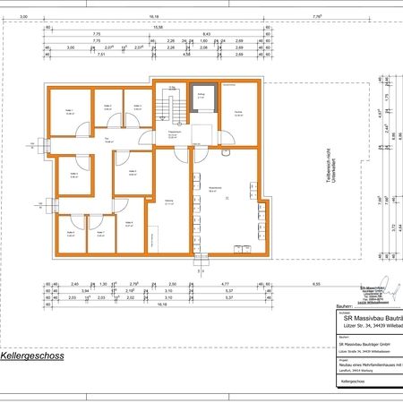
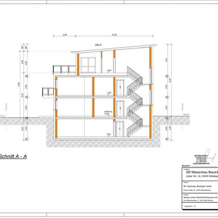
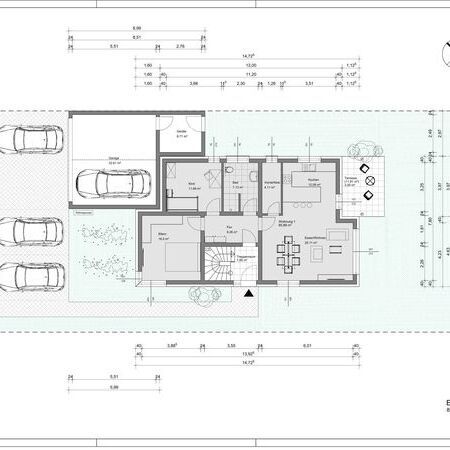
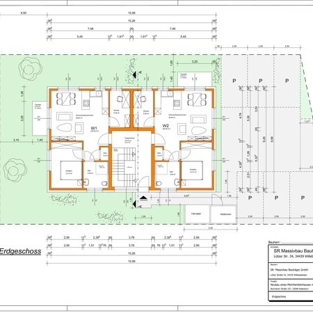
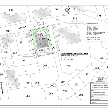
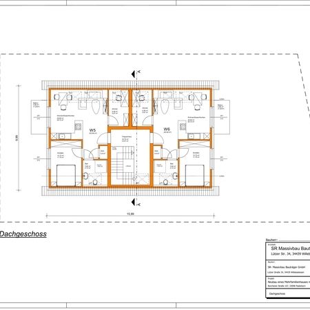
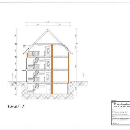
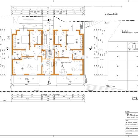
Neubau eines Mehrfamilienhauses in Warburg, Landfurt

In Warburg wird ein 8-Familienhaus in barrierefreier Ausführung mit Aufzug entstehen. Als Heizsystem wird eine energiesparende Luft-Wasser-Wärmepumpe eingebaut. Hochwertige Dämmmaßnahmen 22cm (Wärmedämm-Verbundsystem) sorgen für niedrige Energiekosten. Die Wärmeverteilung in den Wohnungen erfolgt über eine Fußbodenheizung, die in jedem Zimmer separat geregelt werden kann. Eine moderne Lüftungsanlage dient zur dauernden Be- u. Entlüftung der Wohnungen. Große Fenster zur Westseite sorgen für lichtdurchflutete, helle Räume. Die Fenster haben eine 3-fach-Wärmeschutzverglasung und werden mit elektrischen Rollläden ausgestattet. Im Keller wird für jede Wohnung ein eigener Abstellraum errichtet. Für alle Bewohner steht ein Wasch- und Trockenkeller zur Verfügung. Fahrradstellplätze befinden sich im Schuppen mit ebenerdigem Zugang. 

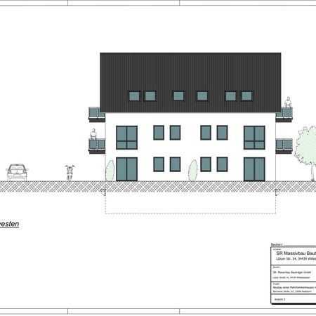
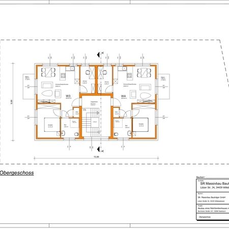
Neubau eines Mehrfamilienhauses in Paderborn, Borchener Str.

In der Borchener Straße in Paderborn errichten wir ein Mehrfamilienhaus mit 6 Wohneinheiten. Als Heizsystem wird eine energiesparende Luft-Wasser-Wärmepumpe eingebaut. Hochwertige Dämmmaßnahmen 22cm (Wärmedämm-Verbundsystem) sorgen für niedrige Energiekosten. Die Wärmeverteilung in den Wohnungen erfolgt über eine Fußbodenheizung, die in jedem Zimmer separat geregelt werden kann. Eine moderne Lüftungsanlage dient zur dauernden Be- u. Entlüftung der Wohnungen. Große Fenster zur Westseite sorgen für lichtdurchflutete, helle Räume. Die Fenster haben eine 3-fach-Wärmeschutzverglasung und werden mit elektrischen Rollläden ausgestattet. Im Keller wird für jede Wohnung ein eigener Abstellraum errichtet. Für alle Bewohner steht ein Wasch- und Trockenkeller zur Verfügung. Fahrradstellplätze befinden sich im Schuppen mit ebenerdigem Zugang. 

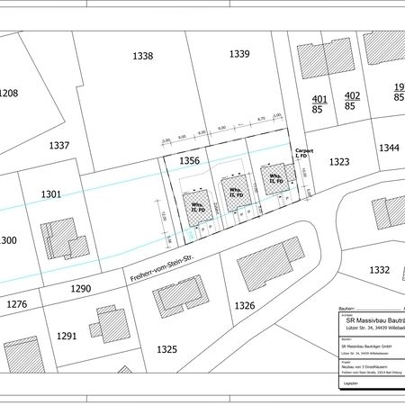
Neubaugrundstücke in Warburg, Landfurt

Sie sind auf der Suche nach einem Baugrundstück in Warburg und möchten sich den Traum vom Eigenheim erfüllen? 

Wir haben Grundstücke für Sie im Angebot und können Ihnen einen passenden Entwurf nach Ihren Vorstellungen entwerfen.

Sprechen Sie uns an!

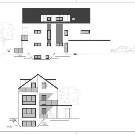
Baugebiet Parkblick, Bad Driburg

Das Baugiebiet Parkblick bietet eine hervorragende Lage unmittelbar am gräflichen Park, dennoch ist man fußläufig in nur 10 Minuten in der Einkaufszone Bad Driburgs. Es entstehen drei Grundstücke, die durch Einfamilienhäuser oder Häuser mit maximal zwei Wohneinheiten bebaut werden können. 

Aktuell befinden wir uns in der Planung, sodass Ihre Wünsche und Vorstellungen als Bauherr noch in den Entwurf mit einfließen können. In der untenstehenden Galerie ist der aktuelle Planungsstand zu sehen - für Sie als Anregung.

Wenn Sie auf der Suche nach einem Grundstück in Bad Driburgs ansprechenster Lage sind und Interesse am Bau eines Ein- oder Mehrfamilienhauses sind, oder interessiert an einer Eigentumswohnung, dann zögern Sie nicht uns zu kontaktieren. Sie haben noch volles Mitspracherecht und gerne passen wir den Entwurf für Sie an.

Wir freuen uns auf Sie!

Neubau eines Mehrfamilienhauses in Paderborn, Husener Str.

In zentraler Lage, an der Husener Straße, entstehen 6 barrierefreie Eigentumswohnungen im KFW40-Standard mit einer Aufzugsanlage. Als Heizsystem wird eine energiesparende Luft-Wasser-Wärmepumpe eingebaut. Hochwertige Dämmmaßnahmen 22cm (Wärmedämm-Verbundsystem) sorgen für niedrige Energiekosten. Die Wärmeverteilung in den Wohnungen erfolgt über eine Fußbodenheizung, die in jedem Zimmer separat geregelt werden kann. Eine moderne Lüftungsanlage dient zur dauernden Be- u. Entlüftung der Wohnungen. Große Fenster zur Westseite sorgen für lichtdurchflutete, helle Räume. Die Fenster haben eine 3-fach-Wärmeschutzverglasung und werden mit elektrischen Rollläden ausgestattet. Jedes Badezimmer hat ein Fenster und ist mit einer Dusche ausgestattet. Im Keller wird für jede Wohnung ein eigener Abstellraum errichtet. Für alle Bewohner steht ein Wasch- und Trockenkeller zur Verfügung. Fahrradstellplätze befinden sich im Schuppen mit ebenerdigem Zugang. Sämtliche Badarmaturen, Schalter u. Steckdosen sowie Türgriffe werden in der Farbe mattschwarz ausgeführt! Die Fenster sind von innen und außen in der Farbe anthrazit. Anthrazitfarbenes Dach und Haustür.
Die Malerarbeiten sowie die Bodenbeläge können nach eigenen Wünschen gestaltet werden und sind in dem Preis nicht enthalten.

Bei Interesse stellen wir gern den Kontakt zu den Postbank Immobilien in Paderborn her.

Wir freuen uns auf Sie!

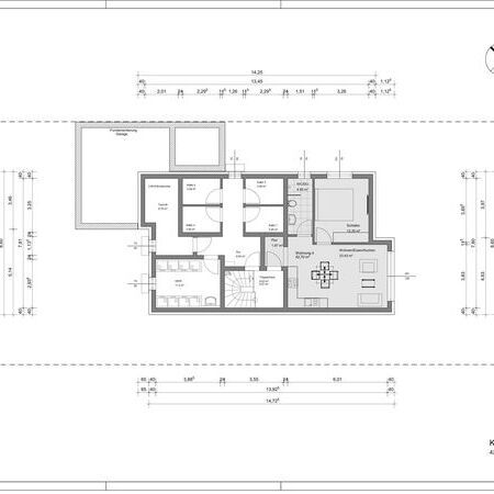
Attraktive Grundstücke im Herzen von Bad Driburg - mit Blick zur Iburg

Auf einem Areal in innenstädtischer Lage in Bad Driburg ergeben sich neue Grundstücke, die durch Einzelhäuser sowie Doppelhäuser bebaut werden können. Vorentwürfe inkl. Kalkulationen liegen vor, die Häuser können jedoch auch individuell nach Ihren Vorstellungen entworfen und gebaut werden.

Außerdem entsteht ein Mehrfamilienhaus mit sechs barrierefreien Eigentumswohnungen inkl. Tiefgaragen, die Planung ist in der Galerie zu sehen.

Gern beraten wir Sie bezüglich der Möglichkeiten und erstellen Ihnen ein Angebot für Ihr Wohnhaus oder eine Eigentumswohnung. 

Neubau eines Mehrfamilienwohnhauses in Paderborn, Rotheweg

In beliebter Lage in Paderborn ist ein neues Mehrfamilienhaus mit vier Wohneinheiten entstanden. Drei von vier Eigentumswohnungen sind bereits verkauft und die Käufer haben die Wohnungen Ende letzten Jahres bezogen.

Das Souterrain-Apartment ist vermietet und steht noch zum Verkauf. Es stellt eine hervorragende Kapitalanlage dar.

 Bei Interesse an diesem Neubau-Apartment leiten wir gern den Kontakt zu den OWL-Immobilien in Paderborn her.

Zum Seitenanfang